talynt.org
HOME
About
Contact
Disclaimer
Privacy
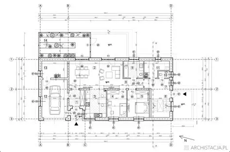
Zwymiarowanie rysunku architektonicznego
Oct 13, 2025
by talynt.org
57
views